Продукция:

ТОКООГРАНИЧАВАЩИ ПАТРОНИ

ЗА ВИСОКО НАПРЕЖЕНИЕ

  

Токоограничаващите патрони за високо напрежение са предназначени за защита на електрическото оборудване от претоварване и токове на късо съединение.

Високата изключвателна мощност и сигурното токоограничаващо действие ги правят едни от най-сигурните апарати за защита на силови трансформатори и други електропотребители, свързани към комплектни разпределителни устройства, комплектни трансформаторни подстанции в комбинация с мощностни разединители или самостоятелно, като се монтират на стойки за съответното напрежение и вид монтаж.

 

Описание

Токоограничаващия патрон се състои от външна тръба, на двата края на която са закрепени токопроводящи капачки, вътрешен керамичен носач със стопяеми токоограничаващи елементи и индикаторно устройство. Индикаторното устройство не само показва състоянието на патрона, но може да задействува други механизми и апарати със сила 20N.

 

Работни условия

Патроните са предназначени за нормален /Х/ климат, закрит монтаж в променливотокови електрически вериги с честота 50 и 60 Hz.

  - надморска височина до 1000m

 - температура на околната среда -25 до + 40°С

 - максимална относителна влажностна въздуха до 80% при 20°С

 - патроните не са предназначени за работа в силно замърсени среди с прах, масла, разяждащи и възпламеними газове, пари и соли, а също така и при силни сътресения, удари и вибрации.

 

 

 

ТОКООГРАНИЧАВАЩИ ПАТРОНИ

ЗА ВИСОКО НАПРЕЖЕНИЕ

 

        ТЕХНИЧЕСКИ ДАННИ

Тип

Uн/Uмакс

кV

А

L1

mm

L2

mm

L3

mm

D

mm

D1

mm

Маса

кg

Iн изкл

кА

Фиг.

ВПм

10 / 12

2;4;6;10;15

-

374

399

-

48,6

1,30

65

1

ВПм

10 / 12

20;25

294

364

389

68

48,6

2,10

65

2

ВПм

10 / 12

30;40

294

364

389

82

48,6

2,90

65

2

ВПм

20 / 24

2;4;6;10;15

-

519

544

-

48,6

1,67

32

1

ВПм

20 / 24

20;25

441

511

536

68

48,6

2,80

32

2

ВПм

20 / 24

30;40;

441

511

536

82

48,6

4,30

32

2

ВПм

35 / 40,5

2;4;6;10

-

619

644

-

48,6

1,97

13

1

ВПм

35 / 40,5

15

541

611

636

68

48,6

3,60

13

2

ВПм

35 / 40,5

20

541

611

636

82

48,6

5,30

13

2

 

 

 

Стандарти: Патроните тип ВПм отговарят на изискванията на БДС 8945-75. По отношение на изпитвателните параметри те са в съответствие с изискванията на IEC 282 -1, 2, 3 и ГОСТ 2213-79.

 

 

 

 

ТОКООГРАНИЧАВАЩИ ПРЕДПАЗИТЕЛИ

ЗА ВИСОКО НАПРЕЖЕНИЕ (ЗАКРИТ МОНТАЖ) 

                                      

ГАБАРИТНИ РАЗМЕРИ 

ТИП

L1

L2

L3

L4

H1

H2

H3

D1

Пр ВПм 10 / 2 ÷ 30

465

145

325

435

168

202

268

85

Пр ВПм 20 / 2 ÷ 30

610

290

470

580

228

262

328

95

Пр ВПм 35 / 2 ÷ 30

710

390

570

680

359

393

459

108

Пр ВПм 10 / 40

465

145

325

435

180

214

280

85

Пр ВПм 20 / 40

610

290

470

580

240

274

340

95

 

 

 

 

 

            

 

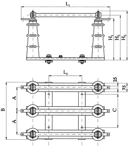
ГАБАРИТНИ РАЗМЕРИ   

ТИП

L1

L2

А

В

H1

H2

H3

С

3Пр ВПм 10 / 2 ÷ 30

465

145

205

500

188

222

288

290

3Пр ВПм 20 / 2 ÷ 30

610

290

280

650

248

282

348

440

3Пр ВПм 35 / 2 ÷ 20

710

390

400

890

379

413

479

680

3Пр ВПм 10 / 40

465

145

205

500

200

234

300

290

3Пр ВПм 20 / 40

610

290

280

650

260

294

360

440

                                                                   

 

  

 

ТОКООГРАНИЧАВАЩИ ПАТРОНИ

ЗА ВИСОКО НАПРЕЖЕНИЕ ЗА Ж.П. ТРАНСПОРТ

 

 

 

Токоограничаващите патрони за високо напрежение служат за защита на електрическото оборудване на ж.п. вагоните от къси съединения и токово претоварване.

Високата изключвателна мощност и сигурното токоограничаващо действие ги правят едни от най-сигурните защитни апарати.

 

Описание

Токоограничаващият патрон се състои от външна порцеланова тръба, на двата края на която са закрепени токопроводящи защитни капачки и вътрешен керамичен носач със стопяеми токоограничаващи елементи.

 

Работни условия

Патроните могат да се използуват при нормални климатични условия, в затворени помещения, в променливотокови електрически вериги с честота 50 и 60 Hz.

 

 - Надморска височина до 1000m

 - Температура на околната среда -25 до +40°С

 - Максимална относителна влажност на въздуха до 80% при 20°С

 - Патроните не са предназначени за работа в силно замърсени среди с прах, масла, разяждащи и възпламеними газове, пари и соли, а също така и при силни сътресения, удари и вибрации.

 

 

Технически данни

Тип

  Iн изкл:

Маса

ВПВ 3,85/25

 

3,85 кV

25A

 

65 kA

 

2,460 kg

ВПВ 3,85/30

30 A

ВПВ 3,85/40

40 A

ВПВ 3,85/50

50 A

 

 

Стандарти: Патроните тип ВПВ отговарят на изискванията на БДС 8945-75. По отношение на изпитвателните параметри те са в съответствие с изискванията на IEC 282-1 и ГОСТ 2213-79.